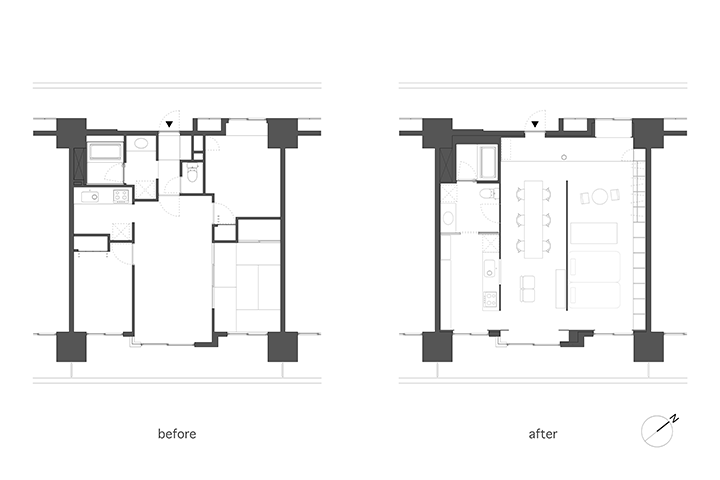
町田の住宅 Flat in Machida
completion 2011 location Kanagawa, Japan type housing (renovation) floor 11/14F structure SRC floor area 65.28㎡ photo makoto yoshida